Разработка чертежей: правила их выполнения и госты.Справочник инженера-строителя:
материалы
Системы стандартов
Теги -
Государственные элементные сметные нормы
строительные организации
Общие требования
строительные нормы
Общие правила оформления индивидуальных заданий по техническому черчению
При оформлении пояснительных записок, эскизов, чертежей и схем необходимо строго соблюдать все правила и требования, установленные стандартами ЕСКД на масштабы, форматы листов, основные надписи, чертежный шрифт. Стандарты ЕСКД, принятые в 1968 г., определяются по классификационным группам. Группа 1 - "Основные положения", группа 3 - "Общие правила выполнения чертежей" и т.п. ГОСТ 2.315-68 обозначает: 2 - номер, присвоенный всему комплексу стандартов ЕСКД; 3 - номер группы стандартов по присвоенной классификации; 15 - порядковый номер, начиная с 01, в пределах данной группы; 68 - год утверждения стандарта. Следует иметь в виду, что многие стандарты периодически уточняются и в них вносятся соответствующие изменения и дополнения. Надо помнить, что несоблюдение стандарта преследуется по закону.
Перечень стандартов ЕСКД, изучаемых в курсе технического черчения
Основные положения. Общие положения: ГОСТ- 2.001-70. Виды изделий: ГОСТ- 2.101-68. Стадии разработки : ГОСТ- 2.103-68. Основные надписи: ГОСТ- 2.104-68. Основные требования к текстовым документам: ГОСТ- 2.105-68. Основные требования к рабочим чертежам: ГОСТ-2.107-68. Спецификация: ГОСТ- 2.108-68. Правила выполнения чертежей деталей, сборочных, общих видов, габаритных и монтажных: ГОСТ- 2.109-68. Технические условия, Правила построения, изложения и оформления: ГОСТ- 2.114-70.
Общие правила выполнения чертежей. Форматы: ГОСТ- 2.301-68. Масштабы: ГОСТ- 2.302-68. Линии: ГОСТ- 2.303-68. Шрифты чертежные: ГОСТ- 2.304-81. Изображения - виды, разрезы, сечения: ГОСТ- 2.305-68. Обозначение графических материалов и правила их нанесения на чертежах: ГОСТ- 2.306-68. Нанесение и указание размеров и предельных отклонений: ГОСТ- 2.307-68, ГОСТ- 2.308-68. Нанесение на чертежах обозначений шероховатости поверхностей: ГОСТ- 2789-73. Нанесение на чертежах обозначений покрытий, термической и других видов обработки: ГОСТ- 2.310-68. Изображение резьбы: ГОСТ- 2.311-68. Условное изображение и обозначение швов сварных соединений: ГОСТ- 2.312-68. Условное изображение и обозначение швов неразъемных соединений: ГОСТ- 2.313-68. Изображения упрощенные и условные крепежных деталей : ГОСТ- 2.315-68. Правила нанесения на чертежах надписей, технических требований и таблиц: ГОСТ- 2.316-68. Аксонометрические проекции: ГОСТ- 2.317-69.
Правила выполнения чертежей различных изделий (пружин, зубчатых колес, реек, червяков, звездочек цепных передач, подшипников и т.п.) ГОСТ- 2.401-68 .... ГОСТ- 2.421-70.
Правила выполнения схем и условные графические обозначения (общие требования, схемы электрические, кинематические, машины электрические и их элементы, гидравлические насосы и двигатели, трубопроводы и их элементы) ГОСТ- 2.701-68 .....ГОСТ- 2.786-70.
Рис. 1
Задания по техническому черчению индивидуальные. Курсант выполняет тот вариант задания, номер которого соответствует его порядковому номеру в классном журнале, Чертежи выполняются на листах бумаги указанного в методических указаниях формата или на отдельных листах формата А3. Чертеж оформляется рамкой, которая проводится сплошной основной линией (рис.1).
В правом нижнем углу формата помещается основная надпись (рис.2), все графы которой заполняются надписями шрифтом по ГОСТ 2.304-81. В графе 1 основной надписи указывают шифр (номер зачетной книжки, номер задания, номер группы); в графе 2 - наименование задания или название выполняемой детали; в графе 3 - материал детали. Основную надпись на листах формата А4 располагают вдоль короткой стороны листа, на остальных форматах можно располагать вдоль той и другой стороны.
Основная надписьРис. 2
Чертежи вычерчиваются с помощью чертежных инструментов в масштабе и размещаются с учетом наиболее равномерного размещения всего задания в пределах формата. Разрешается выполнение чертежей, эскизов и расчетов на ПЭВМ в графической системе "Автокад" или ей подобных. Те курсанты, которые прошли обучение в морском лицее, выполнив задания по геометрическому и проекционному черчению выполняют эти задания или адекватные им на ПЭВМ.
Для выполнения чертежей необходимо иметь чертежные инструменты: карандаши различной твердости (для проведения тонких линий лучше всего твердости Т, для сплошных основных линий - марки ТМ); линейку мерительную; угольники с углами 30-60-90; готовальню (включающую круговой циркуль, циркуль-измеритель, кронциркуль для проведения дуг и окружностей малого радиуса); стирательную резинку, кнопки, лекала, рейсшину и т.д.
Бумага чертежная выбирается курсантом самостоятельно, и от ее качества зависит качество чертежа. Можно рекомендовать использовать альбомы с расшитыми листами формата А3, которые часто продаются в канцелярских магазинах.
ШРИФТЫ ЧЕРТЕЖНЫЕ
/ вводное индивидуальное задание /Содержание Оформить титульный лист расчетно-графической работы
Шрифты чертежные (тип А) Изучить правила написания букв и цифр по ГОСТ 2.304-81. На бумаге формата А4 вычертить рамку и выполнить надписи шрифтами 5 и 7. Рекомендуется вначале выполнить упражнения по написанию шрифта всего алфавита на отдельном листе, используя вспомогательную сетку (рис.3), для того чтобы выработать глазомер для правильного соотношения размеров и наклона (75° ) букв и цифр (75° ). После упражнений выполнить надписи на формате А4 (рис.4 и прил.8) уже без сетки, от руки, в глазомерном масштабе, соблюдая наклон букв, толщину линий шрифта и соотношения элементов шрифта по ГОСТ.
Рис. 3
Рис. 4
Все прописные, строчные буквы и цифры на листе имеют одну толщину (S) линий шрифта. Расстояние между буквами в слове равно 1,5 - 2S, между словами в предложении - 6S.
Наиболее характерные ошибки, на которые преподаватель всегда обращает внимание: - не выдержаны размеры (высота) шрифта по ГОСТ; - буквы в строке "прыгают"; - не соблюдается горизонтальная линия; - наклон не у всех букв одинаков и т.д.
Рекомендации. Для того чтобы буквы не прыгали, соблюдалась их высота и предложения были горизонтальными, необходимо с помощью циркуля (кронциркуля с двумя иголками) или какого-либо другого приспособления продавить две параллельные линии по высоте строчных букв, в диапазоне которых выполнить начертание букв. Основные теоретические положения по теме "Шрифты чертежные" ГОСТ 2.304-81
Размер соответствует номеру шрифта h и определяется высотой прописных букв в мм. ГОСТ допускает следующие номера (высоту прописных букв) шрифта: 2,5; 3,5; 5; 7; 10; 14; 20; 28; 40
Высота строчных букв на один размер меньше размера прописного шрифта. Например, для 10 шрифта высота прописной буквы 10 мм, а высота строчных букв будет 7 мм. Имеется зависимость ширины букв от их высоты:
Ширина прописных букв Г,Е,З,С - 6/14 h ; букв А,Д,Х Ц,Ы,Ю - 8/14 h; для букв Ж,М,Ъ - 9/14 h; Щ - 10/14 h; Ф - 11/14 h; для всех остальных - 7/14 h.
Ширина строчных букв з,с - 5/14 h ; букв а,м,ц,ъ,ы,ю - 7/14 h; ж - 8/14 h; т,ф,ш - 9/14 h; для всех остальных - 7/14 h.
ГОСТ устанавливает шрифт с наклоном (около 75° ) и без наклона, шрифт типа А и шрифт типа Б. Более распространенными являются шрифты наклонные типа А
ГЕОМЕТРИЧЕСКОЕ ЧЕРЧЕНИЕ
Содержание 1. Выполнить чертеж детали на тему "Линии" ГОСТ 2.303-68 2. Выполнить чертежи, иллюстрирующие правила нанесения размеров по ГОСТ 2.307 - 68. 3. Выполнить чертежи, содержащие примеры на сопряжение, согласно своему варианту.
Оформление Задание выполняется на чертежной бумаге формата А2 или на двух листах формата А3.
Порядок выполнения 1. Изучить ГОСТ 2.301-68 "Форматы", ГОСТ 2.303-68 "Линии", ГОСТ 2.307-68 "Нанесение размеров". 2. Ознакомиться с построением уклона, конусности, сопряжений. 3. Изучить правила обращения с чертежными инструментами и организации рабочего места. 4. Выполнить рамку и основную надпись на чертеже. 5. Поле чертежа разделить на три части. Наметить места расположения заданий и надписей к ним. 6. Выполнить чертежи в тонких линиях, проставить размеры (шрифт 3,5), выполнить надписи (шрифт 7,5; 3,5). 7. После проверки чертежа преподавателем обвести линии по ГОСТ 2.303-68 (0,8 - 1,00 мм). 8. Очистить поле чертежа от лишних линий и загрязнений. 9. Обрезать лист по формату и сдать преподавателю.
Методические рекомендации При выполнении задания толщину сплошной основной линии рекомендуется брать 0,8 - 1 мм. Рамка и основная надпись чертежа выполняются сплошной линией. Размерные линии проводятся от линии контура и между размерными линиями на расстоянии 8-10 мм. Выносная линия должна выходить за стрелку на 1-5 мм. Более подробно о правилах простановки размеров надписей см. ГОСТ 2.301-68 и [9] c. 197-205. Основные теоретические положения по теме "Геометрическое черчение"
Рис. 5
Форматы листов ГОСТ 2.301-68 (рис. 5) определяются размерами внешней рамки - линии обрезки (выполненной тонкой линией). Форматы с размерами сторон 1189 Х 841, площадь которого равна 1 м2, и форматы, полученные путем последовательного деления его на две равные части параллельно меньшей стороне, принимаются за основные (табл.1). Допускается применение дополнительных форматов, образуемых увеличением основных форматов на величину, кратную размерам формата А4 (297Х210). В производстве допускается деление формата А4. Масштабом ГОСТ 2.302-68 называется отношение линейных размеров изображения предмета на чертеже к действительным размерам этого предмета (табл. 2).
На чертежах всегда проставляются только действительные размеры изделия.
Таблица 1
Обозначение формата
А0
А1
А2
А3
А4
Размеры сторон формата
1189 х 841
594 х 841
594 х 420
297 х 420
297 х 210
Таблица 2
Масштаб уменьшения
1 : 2
1 : 2,5
1 : 4
1 : 5
1 : 10
1 : 15
1 : 20
1 : 25
1 : 40
и т.д.
Масштаб увеличения
2 : 1
2,5 : 1
4 : 1
5 : 1
10 : 1
15 : 1
20 : 1
25 : 1
40 : 1
и т.д.
Линии (их назначение, толщина, начертание) по ГОСТ 2.303-68 должны соответствовать требованиям табл.3.
Толщина основных линий чертежей формата до А1 равна примерно 0,3 мм. Длина штрихов в штриховых и штрихпунктирных линиях следует выбирать в зависимости от величины изображения. Штрихи линии должны быть одинаковой длины. Промежутки между штрихами в линии должны быть равны. Штрихпунктирные линии должны пересекаться и заканчиваться штрихами. В случае, если диаметр окружности менее 12 мм., штрихпунктирная линия заменяется сплошной тонкой линией. Размеры на чертежах ГОСТ 2.307-68 (прил. 1)
Уклон (рис.6,а)- это наклон одной линии относительно другой; измеряется отношением катетов прямоугольного треугольника CB : AB = 1 : 5. Конусность (рис.6,б)- это отношение диаметра конуса к его высоте k = ( D - d ) / L. Конусность и уклон выражаются отношением двух чисел или в процентах. Сопряжение (рис.6,в,г)- это плавный переход от одной линии к другой с помощью сопрягающей дуги. Построить сопряжение - это значит найти центры сопрягаемых дуг и точки сопряжения. Существует огромное количество различных сопряжений, применяемых при описании плоских деталей. Основные правила таких сопряжений даны во многих учебниках и справочниках по черчению. В автоматизированных системах такие сопряжения выполняются автоматически.
а)
б)
в)
г)
Рис. 6
Наиболее характерные ошибки. Стрелки размерных линий выполнены не по стандарту, отсутствует зазор между размерной линией и размерным числом, ошибки в нанесении угловых и вертикальных размеров, отсутствие центровых размеров, пересечение размерных линий, разные (часто маленькие) расстояния между размерными линиями, неодинаковая высота цифр на чертеже, толщина линий не выдержана, основная надпись и рамка не выделены основной линией, толщина основной линии на чертеже неодинаковая, отсутствует пересечение штрихов осевой линии в центрах окружностей и с контуром, разрыв в осевой линии больше 5 мм.
ПРОЕКЦИОННОЕ ЧЕРЧЕНИЕ
Содержание 1. Выполнить эскиз и чертеж детали с натуры в трех проекциях, а также ее наклонное сечение. 2. По индивидуальному заданию выполнить чертеж детали в трех проекциях, простые разрезы (соединение вида с разрезом) и прямоугольную димметрию. 3. Выполнить чертеж детали в трех проекциях, необходимый сложный разрез и прямоугольную изометрию. 4. По аксонометрическому изображению детали выполнить ее комплексный чертеж (три проекции и необходимые разрезы).
Оформление Эскиз (подробнее об эскизировании см. прил. 4) детали можно выполнять на листе в клетку формата А4 или А3, обязательно с рамкой и основной надписью. Чертежи выполняются на чертежной бумаге четыре гранки на листе формата А1 (594 Х 841) или на отдельных листах формата А3 (297 х 420).
Методические рекомендации Изучить ГОСТ 2.305-68 "Изображения - виды, разрезы, сечения", ГОСТ 2.307-68 "Нанесение размеров, "ГОСТ 2.317-68 " Аксонометрические проекции". Просмотреть данные темы по рекомендованным справочникам и книгам. Наклонное сечение при эскизировании детали задает преподаватель. Проекции детали, ее наклонного сечения (можно с поворотом), надписей рекомендуется располагать на листе равномерно, используя масштабы по ГОСТ 2.302-68. Штриховка в разрезах и сечении на комплексных чертежах выполняется, как для твердых материалов, с наклоном 45°, (в аксонометрии штриховка выполняется по правилу треугольника или диагонали ромба). Наклон штриховки для всех разрезов и сечений одной и той же детали выполнять в одну сторону. Линейные размеры на чертеже задавать высотой 3,5 мм. Основную надпись на формате А1 можно выполнять одну, условно разделив лист на четыре части. Рамка и основная надпись чертежа выполняются сплошной линией. Размерные линии проводятся от линии контура и между размерными линиями на расстоянии 8-10 мм. Выносная линия должна выходить за стрелку на 1-5 мм и т.д (ГОСТ 2.301-68).Характерные ошибки при выполнении задания по проекционному черчению
- неправильно выполнена штриховка деталей в разрезах на аксонометрических проекциях; - неправильно построена окружность (эллипс) на аксонометрических проекциях; - неправильно обозначены секущая плоскость (наклон букв неправилен и не не в том месте стоят стрелки и т.д.). Основные теоретические положения по теме "Проекционное черчение"
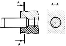
Рис. 7
Правила изображения изделий (рис.7), сооружений и их элементов устанавливает ГОСТ 2.305-68. Изображения выполняются по методу прямоугольного проецирования (в аксонометрии допускается косоугольное проецирование). При этом предмет располагают между наблюдателем и соответствующей плоскостью проекций. За основные плоскости проекций принимают шесть граней куба. Изображение на фронтальной плоскости (вид спереди) является главным. Изображения разделяются на виды, разрезы, сечения. Вид - изображение обращенной к наблюдателю видимой части поверхности предмета, который располагают так, чтобы изображение давало наиболее полное представление о форме и размерах предмета.
Основные виды: вид спереди (главный вид); вид сверху; вид слева; вид справа; вид снизу; вид сзади. Если часть предмет невозможно показать на основных видах без искажения формы и размеров, то используют дополнительный вид. Изображение отдельного, ограниченного места предмета называется местным видом.
Правила изображения видов: если главные виды изображены на своих местах (рис.7), они не подписываются; в противном случае должна быть надпись по типу "Вид А". Направление взгляда должно быть указано стрелкой, обозначенной прописной буквой. Дополнительный вид и местный вид оформляются аналогично. Если дополнительный вид расположен в проекционной связи, то стрелку и надпись над видом не наносят. Дополнительный вид можно повернуть с добавлением к надписи знака О (слово "повернуто" не пишется). Местный вид, как правило, ограничен линией обрыва.
Разрезы - это изображение предмета, мысленно рассеченного одной или несколькими плоскостями; при этом в разрезе показывается то, что получается в секущей плоскости, и то, что расположено за ней. Разрезы разделяют в зависимости от положения секущей плоскости. Горизонтальные разрезы - секущая плоскость параллельна горизонтальной плоскости, соответственно получают фронтальные (рис.9) и профильные разрезы. Разрезы горизонтальные, фронтальные и профильные, как правило, располагают на месте соответствующего вида (например, горизонтальный разрез: его секущая плоскость будет на фронтальной плоскости а его изображение будет на виде сверху). Наклонные разрезы - секущая плоскость под наклоном к горизонтальной плоскости.
Рис. 8
Рис. 9
В зависимости от числа секущих плоскостей разрезы разделяют на простые - при одной секущей плоскости и сложные разрезы - при нескольких секущих плоскостях. Сложные разрезы бывают ступенчатыми (рис.10), если секущие плоскости параллельны, и ломаными (рис.11), если секущие плоскости пересекаются. Разрез, служащий для выяснения устройства предмета в отдельном, ограниченном месте, называется местным.
Рис. 10
Рис. 11
Правила изображения разрезов: положение секущей плоскости указывается на чертеже линией сечения. Для линии сечения должна применяться разомкнутая линия (со стрелками направления взгляда и буквами с наружной стороны стрелок, обозначающих секущую плоскость), при сложном разрезе штрихи проводят также у перегибов линии сечения. На начальном и конечном штрихах следует ставить стрелки, указывающие направления взгляда; стрелки должны наноситься на расстоянии 2-3 мм от конца штриха; начальный и конечные штрихи не должны пересекать контур изображения. Разрез (обычно совмещенный с тем или иным видом) должен быть отмечен надписью букв соответствующей секущей плоскости по типу "А - А" (всегда двумя буквами через тире, без подчеркивания). Если секущая плоскость совпадает с плоскостью симметрии предмета в целом, то для горизонтальных, фронтальных и профильных разрезов не отмечают положение секущей плоскости, и разрез надписью не сопровождают.
Надо помнить, что при ломаных разрезах секущие плоскости условно поворачивают до совмещения в одну плоскость. В этом случае при совмещении разреза с видом элементы предмета вычерчивают на плоскость с поворотом и проекция такого разреза может не совпадать с изображением предмета без ломаного разреза.
Местный разрез выделяется на виде сплошной волнистой линией, и эта линия не должна совпадать с какими-либо другими линиями изображения.
Часть вида и часть соответствующего разреза допускается соединять, разделяя их сплошной волнистой линией. Если соединяются половина вида и половина разреза, каждый из которых является симметричной фигурой, то разделяющей линией служит ось симметрии. Допускается соединять: четверть вида и четверти трех разрезов; четверть вида, четверть одного разреза и половину другого и т.п. при условии, что каждое из этих изображений в отдельности симметричны.
Сечение - это фигура, полученная при мысленном рассечении предмета плоскостью. Сечение отличается от разреза тем, что в разрезах изображается то, что находится в сечении, и то, что находится за сечением. В сечениях изображается только то, что находится в сечении. Сечения,не входящие в состав разреза, разделяют на вынесенные и наложенные.
Правила изображения сечений: контуры вынесенного сечения (рис.12,а,в), а также сечения, входящего в состав разреза, изображаются сплошными линиями, а контур наложенного сечения (рис.12,б,в) - сплошными тонкими линиями. Ось симметрии наложенного или вынесенного сечения указывают штрихпунктирной тонкой линией без обозначения буквами и стрелкой, и линию сечения не проводят. В остальных случаях сечения обозначают и подписывают по типу разрезов. Сечение по построению и расположению должно соответствовать направлению, указанному стрелками. Допускается располагать сечение в любом месте поля чертежа, а также с поворотом, с добавлением знака "повернуто". Для нескольких одинаковых сечений, относящихся к одному предмету, линию сечения обозначают одной буквой и вычерчивают одно сечение. Если секущая плоскость проходит через ось поверхности вращения (отверстия или углубления), то сечения выполняют по правилу разреза (т.е. показывается контур отверстия).
а)
б)
в)
Рис. 12
Выносные элементы- дополнительные отдельные изображения (обычно увеличенные) какой-либо части предмета, требующей пояснений в отношении формы и размеров.
Выносной элемент отмечают на виде, разрезе или сечении замкнутой линией (окружностью или овалом) с обозначением выносного элемента буквой русского алфавита на полке линии-выноске. У выносного элемента следует указывать букву и в скобках масштаб изображения по типу: А (2 :1).
Условности и упрощения. Если вид, разрез или сечение представляет собой симметричную фигуру, допускается вычерчивать половину изображения или немного больше половины с проведением линии обрыва. Для одинаковых, равномерно расположенных элементов разрешается одно-два их изображения. Линии пересечения поверхностей допускается упрощать и изображать в виде прямых и дуг окружностей. Плавный переход от одной поверхности к другой показывается условно (тонкой линией) или совсем не показывается. Такие детали, как винты, заклепки, шпонки, шарики, не пустотелые валы и шпинделя, шатуны, рукоятки и т.д. при продольном разрезе показываются не рассеченными. Не рассеченными на сборочных чертежах показываются гайки и шайбы. Элементы деталей: спицы маховиков, шкивов, зубчатой шестерни или зубчатого колеса, ребер жесткости показывают не заштрихованными, если секущая плоскость направлена вдоль оси или длинной стороны такого элемента. При выделении на чертеже плоских поверхностей предмета на них проводят диагональные линии сплошными тонкими линиями. Длинные предметы (или элементы), имеющие постоянное или закономерно изменяющееся поперечное сечение (валы, цепи, прутки, фасонный прокат, шатуны и т.п.), допускается изображать с разрывами.
Наиболее характерные ошибки. Неправильно выбран главный вид (количества изображений) для деталей, изготовляемых на токарном станке, отсутствуют осевые линии, отсутствует проекционная связь между видами, линии штриховки нанесены под углом, отличным от 45°, неодинаковая штриховка на различных проекциях одной и той же детали, отсутствуют габаритные размеры, не соблюдены принципы простановки размеров, несоблюдение размерных цепей, часто изображают невидимые линии, которые на одном из видов уже выявлены на разрезе, неправильное обозначение секущих плоскостей и их обозначений.
РАЗЪЕМНЫЕ И НЕРАЗЪЕМНЫЕ СОЕДИНЕНИЯ
Методические указания
1. Содержание задания
1.1. Выполнить эскиз и произвести расчеты болта и шпильки согласно своему варианту. 1.2. Выполнить чертежи болтового соединения и его стандартных деталей (болта, гайки, шайбы). 1.3. Выполнить чертежи шпилечного соединения, шпильки и отверстия под шпильку. 1.4. Выполнить чертежи винтового соединения. 1.5. Выполнить чертежи трубы и трубного соединения. 1.6. Выполнить чертеж детали с примерами сварных соединений. 1.7. Выполнить лабораторную работу по определению типа резьбы на машиностроительных деталях.
2. Оформление
2.1. Первая задача и лабораторная работа выполняются эскизно на бумаге в клетку с расчетно-графической запиской. 2.2. Все чертежи остальных задач выполняются на листе чертежной бумаги формата A2 или на двух листах формата А3
3. Порядок и рекомендации выполнения задания
3.1. Выполнить расчетно-графическую часть задания, оформить титульный лист по ГОСТ 2.105-68 и ГОСТ 2.106-68 и сдать на проверку преподавателю. 3.2 Оформление чертежей начинать с рамки и основной надписи. 3.3. Продумать компоновку чертежей на бумаге в виде эскиза. 3.4. На форматных листах (или листе) вначале выполнить все чертежи тонкими линиями, проставить размеры, сделать надписи. 3.5. Дать чертеж на контрольную проверку преподавателю и только затем выполнить окончательную обводку линий. 3.6. Преподавателю осуществить защиту чертежа и знаний основных положений.
Основные теоретические положения по теме "Разъемные и неразъемные соединения"
Одним из типов разъемных соединений деталей является резьбовое соединение, в котором основным соединяющим элементом является резьба. Резьбой называется поверхность, образованная при винтовом движении плоского контура по цилиндрической или конической поверхности. Резьбы классифицируется по форме поверхности, на которой они нарезаны (цилиндрические, конические), по расположению резьбы на поверхности (наружная, внутренняя), по форме профиля (треугольные, прямоугольные, трапецеидальные, круглые), по назначению (крепежные, крепежно-уплотнительные, ходовые, специальные), левые или правые, однозаходные и многозаходные. Все резьбы делятся на стандартные и нестандартные.
К неразъемным соединениям относят сварные, паяные, клеевые, заклепочные и др. Условно сварной шов изображают сплошной основной линией по ГОСТ 2.312-72. Соединение пайкой изображается по СТ СЭВ 138-74 сплошной линией толщиной 2S с условным знаком - дуга. Клеевые соединения изображаются по СТ СЭВ 138-74 сплошной линией толщиной 2S c условным знаком К. Разъемные соединения. Изображение резьбы. ГОСТ 2.311-68
а)
б)
Рис. 13
Резьбу изображают: На стержне (рис.13,а)- сплошными основными линиями по наружному диаметру резьбы и сплошными тонкими линиями - по внутреннему диаметру (на плоскости, перпендикулярной оси стержня по внутреннему диаметру проводят дугу, равную 3,4 окружности, разомкнутую в любом месте).
В отверстии (рис.13,б) - сплошными основными линиями по внутреннему диаметру резьбы и сплошными тонкими линиями - по наружному (на плоскости, перпендикулярной оси отверстия, по наружному диаметру проводят дугу, равную 3,4 окружности, разомкнутую в любом месте). Сплошную тонкую линию при изображении резьбы наносят на расстоянии не менее 0,8 мм от основной линии и не более величины шага резьбы. Резьбу, как невидимую, изображают штриховыми линиями по наружному и внутреннему диаметрам.
Граница резьбы (рис.14,а,б) определяется до начала ее сбега и изображается сплошной основной или штриховой линией, если резьба невидимая. Штриховку в разрезах и сечениях (рис.13,14) проводят до линии наружного диаметра на стержне и до линии внутреннего диаметра в отверстии, т.е. в обоих случаях до сплошной линии. Размер длины резьбы указывают без сбега. Резьбу с нестандартным профилем показывают со всеми необходимыми размерами (шагом, внутренним и наружным диаметрами, толщиной зуба, числом заходов, левым направлением резьбы и т.п.). В соединениях стержень перекрывает отверстия (рис.15), и поэтому в границах стержня резьба имеет сплошную основную линию по наружному диаметру, в отверстии - по внутреннему.
а)
б)
Рис. 14
Рис. 15
Обозначение всех резьб (кроме конических и трубной цилиндрической) относят к наружному диаметру (размерная линия проводится к наружному диаметру). Обозначения конических резьб и трубной цилиндрической резьбы наносят указательной стрелкой. Специальную резьбу со стандартным профилем обозначают Сп и условным обозначением профиля (М - для метрических резьб, Трап - для трапецеидальных, Уп - для упорных)
Упрощенные и условные изображения крепежных деталей на сборочных чертежах и чертежах общих видов выбирают в зависимости от назначения и масштаба чертежа ГОСТ 2.315-68: Крепежные детали, у которых на чертеже диаметры стержней равны 2 мм и менее, изображают условно. Если предмет, изображенный на сборочном чертеже, имеет ряд однотипных соединений, то крепежные детали показывают в одном месте упрощенно, а в остальных - центровыми или осевыми линиями. Шлицы на головках крепежных деталей следует изображать одной сплошной линией: на одном виде - по оси крепежной детали (вид сбоку), на другом - под углом 45° к рамке чертежа.
Наиболее характерные ошибки. Неправильно обозначена резьба на стержне в глухом отверстии, нет границы резьбы, неправильно изображена резьба на фаске, неправильно обозначена трубная резьба, не выдержано расстояние между тонкими и сплошными линиями при изображении резьбы, неправильно выполнено соединение внутренней и наружной резьб (соединение фитинга с трубой).
СБОРОЧНЫЙ ЧЕРТЕЖ
Содержание 1. Выполнить эскизы деталей, входящих в состав сборочной единицы, не считая стандартных. 2. Выполнить сборочный чертеж изделия по эскизам. Заполнить спецификацию.
Оформление Эскизы можно выполнять на листах писчей бумаги в клетку. Затем они должны быть сброшюрованы в альбом формата А4 (297 х 210). Альбом эскизов снабжается обложкой, на которой выполняется основная надпись чертежа. Сборочный чертеж выполняется на листе чертежной бумаги формата А2 (420 х 594). Спецификация на формате А4.
Порядок выполнения Выяснить назначение узла, его рабочее положение и принцип работы. Разобрать узел на составляющие его детали.
Выполнить эскизы деталей, входящих в состав узла, не считая стандартных (болта, гайки, шпильки, и т.п.). Для стандартных деталей параметры брать по таблицам соответствующих ГОСТов.
Приступить к выполнению сборочного чертежа, предусмотрев место для простановки размеров, позиций деталей узла.
Выполнить спецификацию для сборочного чертежа. Очистить поле чертежа от лишних линий и загрязнений. Обрезать лист по формату и сдать преподавателю.
Методические рекомендации Сборочную единицу получить согласно своему варианту (разрешается подобрать узел самостоятельно, согласовав его с преподавателем). Назначение и принцип действия механизма могут быть выяснены в процессе его разборки. Разборка должна сопровождаться выполнением схемы механизма.
Схема механизма необходима для того, чтобы по окончании работы правильно собрать механизм. Кроме того, схема нужна при выполнении сборочного чертежа по эскизам. Схему выполняют упрощенно в одной проекции, заменяя детали схематичным очертанием их контура или условными обозначениями по ГОСТ 2.315-68. На схеме подписывают название деталей механизма и указывают количество деталей (см. рисунок).
Эскизы деталей должны удовлетворять требованиям, предъявляемым к рабочим чертежам, содержащим данные, необходимые для их изготовления и контроля (ГОСТ 2.109-68). На зскизы наносят обозначения шероховатости поверхностей ГОСТ 2789-73.
При выполнении сборочного чертежа следует применять масштаб увеличения для мелких изделий, а для крупных - масштаб увеличения в соответствии с ГОСТ 2.302-68. Количество видов зависит от сложности механизма, но должно быть минимальным, с использованием местных видов, разрезов и сечений. Порядок выполнения сборочных чертежей примерно такой же, как и деталей. Большое внимание должно быть уделено размещению видов. Первой вычерчивают основную деталь (корпус), а затем изображают соединяемые с корпусом детали. Проставляют габаритные и присоединительные размеры (например, для зубчатых колес указывают модуль, количество и направление зубьев) . Номера позиций проставляют на полках линий-выносок, компонуя их в колонку или строчку по прямым линиям, придерживаясь в обходе по часовой стрелке. Шрифт номеров позиций на один или два размера больше шрифта размерных чисел. Основные теоретические положения по теме
Эскизирование (прил.4).Сборочным называется чертеж, изображающий соединение ряда взаимодействующих деталей и узлов, составляющих изделие (машину, механизм), и дающий исчерпывающее представление о его конструкции. Сборочный чертеж должен содержать: а) изображение сборочной единицы, дающее полное представление об изделии; б) указания на сборку изделия; в) указания о характере и способе соединения деталей; д) номера позиций составных частей; е) основные характеристики изделия; ж) габаритные и справочные размеры.
Правила оформления сборочных чертежей установлены ГОСТ 2.109-73 и имеют много общего с правилами изображения деталей. Надо помнить: одна и та же деталь на всех изображениях штрихуется в одном направлении. Смежные (соприкасающиеся) детали штрихуются в разные стороны. Основные виды располагают в проекционной связи, а остальные на свободном месте.
Условности и упрощения на сборочных чертежахдаются в ГОСТ 2.109-73. Если деталь (например, масленка, кожух, щит или маховик ) на чертеже закрывает собой другие детали, то их условно не показывают, поясняя надписью Масленка не показана. Проекцию снятой детали вычерчивают на свободном поле чертежа . Сплошные детали : болты, шпильки, заклепки, шарики, валы, рукоятки, шпинделя и т.п., попавшие в продольный разрез, показываются нерассеченными. Та же условность существует для гаек и шайб. Болты, гайки, шайбы, винты и многие другие детали, для которых ГОСТом установлены упрощенные изображения, на сборочных чертежах должны быть изображены упрощенными. Следует помнить, что многие производственные чертежи, выполненные ранее, были выполнены по старым ГОСТам, где гайки, болты были изображены не упрощенно, что в настоящее время будет считаться ошибкой.
СпецификацияГОСТ 2.108-68 представляет самостоятельный конструкторский документ и выполняется на отдельных листах бумаги формата А4 (допускается иногда выполнять на поле чертежа). Текст спецификации может быть написан от руки, напечатан на машинке или ПЭВМ. В спецификацию вносят: номера позиций, обозначения, наименования и количество составных частей, входящих в специфицируемое изделие . Основная надпись спецификации выполняется по ГОСТ 2.104-68. Спецификация в общем случае состоит из разделов: документация, комплексы, сборочные единицы, детали, стандартные изделия, прочие изделия, материалы, комплекты. Наличие разделов определяется составом изделия. Название каждого раздела указывают в виде заголовка в графе "Наименование" и подчеркивают. После каждого раздела спецификации необходимо оставлять несколько свободных строк для дополнительных записей и по одной строке после каждого заголовка.
Графы спецификации заполняют:
Форм. - формат на котором выполнен чертеж детали (если чертежи не выпущены, то ставят БЧ); Зона - для сложных чертежей больших размеров указывается номер зоны, в которой находится деталь; Поз. (позиция) - указывают порядковые номера составных деталей изделия; Обозначение - записывают обозначения конструкторских документов. Наименование - указывают наименование изделия и его составных частей; Кол. (количество) - указывают количество составных частей в изделии; Прим. (примечание) - дают дополнительные данные, например, для деталей, на которые не выпущены чертежи, - массу. Стандартные изделия записывают в алфавитном порядке с теми наименованиями и обозначениями, которые им присвоены соответствующими стандартами. В разделе "Прочие изделия" вносят нестандартные изделия, изготовляемые по отраслям. Более подробно о заполнении спецификации см. ГОСТ 2.108-68.
Наиболее характерные ошибки. Неправильно выбран главный вид сборочного узла, количество изображений, на проекциях не правильна штриховка одной и той же детали, неверно изображена резьба в соединениях, нанесены не те основные размеры узла, неправильно заполнена спецификация.
ДЕТАЛИРОВАНИЕ
Содержание 1. Выполнить чертежи двух деталей по заданному сборочному чертежу (на ПЭВМ в системах Автокад и "Вектор" разрешается выполнение изображений деталей в виде эскизов, т.е. в глазомерном масштабе, но по всем правилам оформления ГОСТ). 2. Выполнить аксонометрическую проекцию одной детали.
Примечание. На ПЭВМ в системах Автокад и "Вектор" разрешается выполнение изображений деталей в виде эскизов (в глазомерном масштабе), но по всем правилам оформления ГОСТ. Оформление Рабочие чертежи деталей и аксонометрия выполняются на листе чертежной бумаги формата А2 (420 х 594).
Порядок выполнения и методические рекомендации Прочитать описание устройства и принцип работы данного узла. Ознакомиться с содержанием спецификации и получить представление о его форме и форме составных частей.
Определить необходимое количество изображений выполняемых деталей, наметить главный вид и необходимые разрезы. Определить масштаб изображения сборочной единицы, уточнить масштабы изображений для деталей. Расположение изображений данных деталей на рабочих чертежах не должно быть обязательно таким же, как на сборочном чертеже. Все виды, разрезы, сечения и другие изображения выполняются по ГОСТ 2.305 - 68.
Небольшие проточки, выступы, углубления и т.п. следует изображать в виде выносных элементов в большем масштабе.
После вычерчивания изображений наносят обозначения шероховатости поверхностей, проводят размерные и выносные линии, проставляют размерные числа. (Необходимые размеры детали снимают с чертежа сборки в соответствии с его масштабом).
Выбрать по ГОСТ 2.317-68 вид аксонометрии и вычертить аксонометрическую проекцию одной детали с вырезом координатными плоскостями.
Основные теоретические положения по теме "Деталирование"
Деталирование - это процесс выполнения рабочих чертежей деталей, входящих в изделие, по сборочному чертежу изделия. Порядок выполнения рабочего чертежа детали из сборочного чертежа аналогичен выполнению чертежа детали с натуры. При этом формы и размеры детали определяются при чтении сборочного чертежа. Главный вид детали выбирается исходя из общих правил, а не из расположения ее на сборочном чертеже. Например, детали, обрабатываемые на токарных станках (валы, оси, втулки), на чертеже изображаются в горизонтальном положении. Число и содержание изображений детали может не совпадать со сборочным чертежом. Если деталь простая, то достаточно меньшее число видов, и наоборот. На рабочем чертеже должны быть показаны и те элементы детали, которые на сборочном чертеже совсем не изображены или изображены условно или упрощенно. К ним относятся: литейные радиусы, уклоны, проточки, канавки, фаски на резьбах, гнезда под винты, шпильки, болты, гайки и т.д., размеры которых определяются из соответствующих стандартов. Общие размеры детали определяются путем замеров по сборочному чертежу исходя из масштаба изображения. Шероховатость поверхностей детали определяется по описанию и условиям работы изделия и данной детали в изделии. Для определения размеров деталей сборочных чертежей выполненных в нестандартном масштабе (фотографирование, ксерокопия с уменьшением и т.д.), можно вычислить коэффициент искажения.
Например, измеренное по чертежу расстояние равно 80 мм, а проставленный размер дан 100 мм. Разделив 100 на 80, получим коэффициент уменьшения размеров 1,25. Чтобы получить любой размер: необходимо измерить его по чертежу и умножить на 1,25. Графический метод дан на рис. 3. Для этого измеряют по чертежу какой-либо отрезок m, проставляют его размер n, откуда получают наклонную прямую - график масштабов. Для отрезка длиной m1 его истинной длиной будет n1.
Наиболее характерные ошибки.Неправильно выбирается главный вид и количество видов, не используются сечения, не определена резьба или определена неверно и т.д. Многие ошибки повторяются из предыдущих заданий (см. их).
Приложение 1.
Размеры на чертежах ГОСТ 2.307-68 указывают размерными числами (в мм) и размерными линиями. Общее количество размеров на чертеже должно быть минимальным, но достаточным для изготовления изделия. Не допускается повторять размеры одного и того же элемента на разных изображениях. Размеры наносят от общей базы (рис.1,а), от нескольких баз (рис.1,б) или цепочкой (рис.1,в). Не допускается наносить размеры в виде замкнутой цепи, за исключением случая, когда один размер указан как справочный (со звездочкой). В случае, если деталь или элемент детали симметричны размер ставится относительно оси симметрии (рис. 1,г)
а)
б)
в)
г)
Рис. 1
При нанесении размеров ГОСТ устанавливает много правил и ограничений, поэтому необходимо обязательно обращаться к ГОСТам 2.307-68. Особенно необходимо соблюдать следующее: размерные числа ставятся над (1-2 мм) размерными линиями и должны читаться при вращении листа против часовой стрелки; размерные линии предпочтительно наносить вне контура изображения; выносные линии должны выходить за концы стрелок размерной линии на 1...5 мм; расстояние между размерными линиями и от линий контура должно быть 6....10 мм; необходимо избегать пересечения размерных и выносных линий; не допускается использовать линии контура, осевые, центровые и выносные линии в качестве размерных; размерные числа не допускается пересекать какими-либо линиями; в месте нанесения размерного числа осевые, центровые линии и линии штриховки прерываются. Размеры, относящиеся к одному и тому же элементу (пазу, выступу, отверстию и т.д.), рекомендуется группировать в одном и том же месте, там где элемент изображен наиболее полно; при нанесении размера радиуса перед размерным числом ставят прописную R, размера диаметра - знак Ж."; высота цифр и знаков должна быть равна высоте прописных букв; конусность (острый угол треугольника) должна быть направлена в сторону вершины конуса; уклон (острый угол) должен быть направлен в сторону уклона; размеры нескольких одинаковых элементов изделия наносят один раз, с указанием количества (на горизонтальной полке) этих элементов.
Приложение 2.
Графические обозначения материалов в сечениях см. ГОСТ 2.306-68. Металлы и твердые сплавы в сечении на комплексных чертежах обозначаются штриховкой линий под углом 45° . Если линии штриховки совпадают с линией контура, угол берется 30° или 60° . Линии штриховки наносят в одну и ту же сторону (с одинаковой частотой 1...10 мм) на всех проекциях детали. Ребра жесткости при разрезе вдоль не штрихуются. В аксонометрических проекциях штриховка выполняется по правилу треугольника или диагонали ромба, построенного на аксонометрических осях, см. ГОСТ 2.317-69
Приложение 3.
Правила нанесения на чертежах надписей, технических требований и таблиц ГОСТ 2.316-68
Кромеизображения предмета с размерами чертеж может содержать: а) текстовую часть, состоящую из технических требований и (или) технических характеристик; б) надписи с обозначениями изображений, а также относящиеся к отдельным элементам изделия; в) таблицы с размерами и другими параметрами, техническими требованиями, условными обозначениями и т.д. Выполнение основной надписи чертежа должно производиться в соответствии с требованием ГОСТ 2.104-68 и ГОСТ 2.109- 68. Содержание текста должно быть кратким и точным, не должно быть сокращений слов за исключением общепринятых и установленных в стандартах. Текст на поле чертежа, таблицы, надписи, как правило, изображают параллельно основной надписи чертежа. Около изображений на полках линий-выносок наносят только краткие надписи, например, указание о количестве элементов (отверстий, канавок и т.п.). Линию - выноску, пересекающую контур изображения и не отводимую от какой-либо линии, заканчивают точкой. Линию-выноску, отводимую от линии видимого и невидимого контура, изображенного основной и штриховой линией, заканчивают стрелкой. На конце линий-выносок, отводимых от всех других линий, не должно быть ни стрелки, ни точки. Линии-выноски не должны пересекаться между собой, быть непараллельными линиями штриховки. По возможности, они не должны пересекать размерные линии и элементы изображения. Допускается выполнять линии-выноски с одним изломом, а также проводить от одной полки две и более линии-выноски. Надписи, относящиеся к изображению, могут содержать не более двух строк, располагаемых над полкой линии-выноски и под ней. Текстовую часть, помещенную на поле чертежа, располагают над основной надписью. Межу текстовой и основной надписями не допускается помещать изображения, таблицы и т.п. На листах формата более А4 допускается размещение текста в две и более колонки. Ширина колонки должна быть не более 185 мм. Таблицы размещают на свободном поле чертежа (за исключением тех случаев, где стандартом это место установлено, например, для зубчатых колес, червяка, шлицевого вала и т.п.) справа от изображения или ниже его и выполняют по ГОСТ 2.105-68. Для обозначения на чертеже изображений (видов, разрезов, сечений), поверхностей, размеров и других элементов изделия применяют прописные буквы русского алфавита, за исключением букв Й, О, Х, Ъ, Ь, Ы. Размер шрифта буквенных обозначений должен быть больше размера цифр размерных чисел, примерно в два раза. Масштаб изображений на чертеже, отличающийся от указанного в основной надписи, указывают непосредственно под надписью, относящейся к изображению, например: А - А (1:2); Б (5:1); В (2:1)
Приложение 4.
Эскизирование. Прежде чем начать эскизирование, надо выбрать формат бумаги по ГОСТ (формат А4 выбирается вертикально), выполнить рамку и основную надпись. Для выполнения эскиза необходимо: по возможности определить или выяснить наименование и назначение детали; определить, какие геометрические формы составляют поверхности детали; выбрать главное изображение, дающее наиболее полное представление о детали; определить число видов, разрезов и сечений, наметить их расположение на поле эскиза, оставив место для нанесения размеров; провести основные оси симметрии, а также все осевые и центровые линии; нанести наружные контуры тонкими линиями, соблюдая пропорциональность и проекционную связь; выполнить необходимые разрезы и сечения и заштриховать их; изобразить условно все элементы детали: резьбу, проточки, фаски и пр.; нанести выносные и размерные линии, необходимые для выяснения всех размеров детали; по возможности размерные линии должны проводиться вне контура детали; пользуясь мерительными инструментами (металлической линейкой, угольником, штангенциркулем, кронциркулем, нутромером, микрометром, радиусными и резьбовыми шаблонами), обмерить изделие с требуемой точностью и проставить размерные числа, указать шероховатость поверхности, пользуясь эталонными образцами, написать технические требования. Последовательность выполнения эскиза детали дана на рисунке. На эскизе достаточно дать два изображения, причем главным изображением следует считать то, на котором видны три грани шестигранника. Вначале проводят оси симметрии и наносят от руки наружные контуры детали с соблюдением проекционной связи и пропорциональности на глаз (рис.1,а) . Затем изображают фаски и разрез (рис. 1,б) . На рис. 1,в изображены резьба, проточки и фаски. На рис.1,гнанесены выносные и размерные линии. Количество размеров должно быть достаточным, чтобы изготовить деталь по данному эскизу. На рис. 2 дан готовый эскиз детали и выполнен технический рисунок. Обмер деталей и последовательность их эскизирования
а)
б)
в)
г)
Рис. 1
Рис. 2
Приложение 5.
Аксонометрические проекции
ГОСТ 2.317-68 устанавливает следующие аксонометрические проекции:Прямоугольные проекции
Изометрическая проекция (расположение осей рис.1,а) для упрощения выполняют без искажения по осям х,y,z. Окружности (рис.1,б), лежащие в плоскостях, параллельных плоскостям проекций, изображаются эллипсами, у которых направление малой оси совпадает с направлением оси, не входящей в плоскость, а большая ей перпендикулярна. При этом малая ось равна 0,71 диаметра окружности, а большая - 1,22.
а)
б)
в)
Рис. 1 Последовательность выполнения аксонометрической проекции
Диметрическая проекция (рис. 2) выполняется без искажения по осям x и z, с коэффициентом искажения 0,5 по оси y. Окружности (рис.2,б), лежащие в плоскостях проекций, проецируются в эллипсы, у которых большая ось эллипсов равна 1,06 диаметра окружности, а малая ось в плоскости xz (или ей параллельной) - 0,95 , а в других плоскостях 0,35. Направление осей определяется так же, как в изометрии: направление малой оси совпадает с направлением оси, не входящей в плоскость, а большая ей перпендикулярна.
а)
б)
в)
Рис. 2Косоугольные проекции
Фронтальная изометрическая проекция (рис. 3) выполняется без искажения по осямx, y и z. Допускается применять с углом наклона оси y - 30° и 60° . Окружности (рис.3,б), лежащие в плоскостях проекций, параллельных фронтальной плоскости, проецируются в окружности, а окружности, лежащие в плоскостях проекций, параллельных горизонтальной и профильной плоскостям проекций, проецируются в эллипсы. Большая ось эллипсов равна 1,3, а малая ось - 0,54 диаметра окружности. Большая ось эллипса плоскости xy составляет с осью x угол 22° , большая ось эллипса плоскости yz составляет 22° с осью z.
а)
б)
в)
Рис. 3
Горизонтальная изометрическая проекция (рис. 4) выполняется без искажения по осям x, y и z. Допускается применять с углом наклона оси y - 45° и 60° сохраняя угол между осями x и y 90° Окружности (рис.4,б), лежащие в плоскостях проекций, параллельных горизонтальной плоскости, проецируются в окружности, а окружности, лежащие в плоскостях проекций, параллельных фронтальной и профильной плоскостям проекций, проецируются в эллипсы. Большая ось эллипсов равна 1,37, а малая ось - 0,37 диаметра окружности. Большая ось эллипса плоскости xz составляет с осью z угол 15°, большая ось эллипса плоскости yz составляет 30° с осью z.
а)
б)
в)
Рис. 4
Фронтальная диметрическая проекция (рис. 5) выполняется без искажения по осям x, и z, по оси y равен 0,5. Окружности (рис.5,б), лежащие в плоскостях проекций, параллельных фронтальной плоскости, проецируются в окружности, а окружности, лежащие в плоскостях проекций, параллельных горизонтальной и профильной плоскостям проекций, проецируются в эллипсы. Большая ось эллипсов равна 1,07, малая ось - 0,33 диаметра окружности. Большая ось эллипсов плоскости xy составляет с осью x угол 7°, большая ось эллипса плоскости yz составляет 7° с осью z.
а)
б)
в)
Рис. 5
Условности в аксонометрических проекциях. Линии штриховки (рис.6) сечений наносят параллельно одной из диагоналей проекций квадрата, лежащих в соответствующих координатных плоскостях, стороны которого параллельны аксонометрическим осям. При нанесении размеров выносные линии проводят параллельно аксонометрическим осям, размерные линии - параллельно измеряемому отрезку. В аксонометрических проекциях спицы маховиков, ребра жесткости и подобные элементы штрихуют. Условности при изображении зубчатых колес, реек, червяков, резьб остаются как на комплексных чертежах. Допускается применять другие аксонометрические проекции.
а)
б)
в)
Рис. 6
Рис. 7. Примеры построения простой детали а различных аксонометрических проекциях Рис. 8. Пример построения изометрии по комплексному чертежу
Приложение 6.
Условные изображения швов сварных соединений. ГОСТ 2.312-68
Швы сварных соединений условно изображают: видимые швы - сплошными основными линиями, невидимые швы - штриховыми линиями; швы соединений внахлестку, точечные и роликовые - штрих пунктирными линиями; швы соединений внахлестку, выполненных в отверстиях, - знаком " + ". Примеры условного изображения швов сварных соединений даны в. При этом границы шва изображают сплошными основными линиями. На изображении двустороннего шва контур отдельного шва, сваренного особым способом (например, полуавтоматическим ) штрихуют или зачерняют.
Обозначение швов состоит из: а) буквенного обозначения шва, метода сварки и, при необходимости, способа сварки; б) условного графического знака; в) размера сечения шва в мм; г) длины шва в мм; вспомогательного знака. Дополнительные обозначения швов сварных соединений из: а) буквы, определяющей вид сварного соединения: С - стыковое, У - угловое, Т - тавровое, Н - внахлестку; б) цифры, определяющей тип сварного соединения по С11 ГОСТ 8713-70. Для швов, выполненных дуговой электросваркой, буквенное обозначение вида сварки (Э) в основном обозначении не проставляется. Перед буквенными обозначениями вида сварки проставляют буквенное обозначение способа выполнения сварки: Р - ручной, П - полуавтоматической, А - автоматический. Между буквенными обозначениями вида и способа сварки ставят тире. При выполнении сварки одним и тем же способом в обозначении каждого шва не ставят, а дают указание об этом в технических требованиях. Условные графические знаки швов. выполняют сплошными тонкими линиям и высотой 4-7 мм. Расстояние между смежными линиями знака должно быть не мене 0,8 мм. Для двусторонних швов знак строят из знаков односторонних швов, расположенных с двух сторон сварного соединения. Допускается в основных обозначениях швов не указывать размеры сечения шва и длину шва.
Основное обозначение шва сварного соединения проставляют над и под полкой линии-выноски, которую заканчивают односторонней стрелкой, указывающей место видимого шва. Основные обозначения швов наносят: над полкой, когда лицевая сторона шва находится на той стороне соединения, на которой находится стрелка линии-выноски на чертеже (рис. а) и, в противном случае, под полкой (рис. б) . Положение знака под полкой перевернуто. Построение основных обозначений швов сварных соединений
Знаки в основных обозначениях на чертежах проставляются в следующем порядке: а) для швов стыковых соединений: буквенное обозначение вида сварки; условный графический знак; толщину шва а; длину шва l
Пример обозначения одностороннего шва на остающейся подкладке со скосом двух кромок, выполненного дуговой электросваркой, толщиной шва 10 мм и длиной 1000 мм (рис.1,а).
Пример обозначения двустороннего шва, выполненного дуговой электросваркой по ручной подварке, без скоса кромок, толщиной шва 30 мм и длиной шва 1000 мм с Y - образным скосом кромок для ручной подварки (рис.1,б).
Пример обозначения одностороннего стыкового шва с криволинейным скосом двух кромок, толщиной шва 8 мм, длиной шва 1000 мм, выполненного дуговой электросваркой, с порядковым номером 15 (рис.1,в):
а)
б)
в)
Рис. 1
б) для швов угловых соединений: буквенное обозначение вида сварки; катет шва К; условный графический знак; толщину шва а; длину шва l.
Пример обозначения одностороннего шва без скоса кромок, катетом 5 мм, выполненного по замкнутому контуру газовой сваркой (рис.2,а).
Пример обозначения двустороннего шва без скоса кромок, толщиной шва 5 и 3 мм, выполненного автоматической электродуговой сваркой по длине шва 800 мм (рис.2,б).
Пример обозначения двустороннего шва без скоса кромок с катетами шва 5 мм, выполненного дуговой электросваркой в защитных газах (рис.2,в).:
а)
б)
в)
Рис. 2
Рис. 3
в) для швов тавровых соединений: буквенное обозначение вида сварки; катет шва К; условный графический знак; толщину шва а; длину провариваемого участка l прерывистых швов или диаметр точки d для точечных швов. Пример обозначения шва без скоса кромок, толщиной 5 мм при длине провариваемого участка 50 мм и шаге 150 мм, с шахматным расположением участков, выполненного по замкнутому контуру дуговой электросваркой.
Рис. 4
в) для швов соединений внахлестку, выполненных в прорезном отверстии с проплавлением: буквенное обозначение вида сварки; условный графический знак; диаметр отверстия или ширину прорези для швов с круглым или удлинен- ным отверстием или ширину проплавления для швов с проплавлением d. Пример обозначения одностороннего шва с проплавлением при ширине проплавления 15 мм, выполненного автоматической дуговой электросваркой под флюсом.
Рис. 5
в) для швов соединений внахлестку, выполненных контактной сваркой: буквенное обозначение вида сварки; диаметр точки для точечных швов или ширину шва для роликовых швов d, условный графический знак; расстояние между точками е1 или длину проваренного участка роликового прерывистого шва l, знак, характеризующий взаимное расположение точек или участков (вспомогательный знак); расстояние между рядами точек е2 или шаг прерывистого роликового шва t; количество рядов точек n
Пример обозначения двухрядного точечного шва, диаметром точки 5 мм и расстоянием между точками 20 мм, при шахматном расположении точек и расстоянии между рядами точек 10 мм.
Приложение 7.
Шероховатость поверхности и ее обозначение на чертежах
Рис. 1
ГОСТ 2789-73 устанавливает параметры шероховатости Ra и Rz. Rz = (y1+ y2+...+ yn) / n - среднее арифметическое абсолютных значений отклонений профиля в пределах базовой длины, где y - расстояние между любой точкой профиля и средней линией; n - число значений y.(рис.1)
Rz = (H1min +...+ H2min) / 5 - среднее арифметическое абсолютных значений отклонений точек пяти наибольших максимумов и пяти наибольших минимумов профиля (рис.1).
Степень шероховатости поверхности определяется ее классом чистоты. При этом Ra указывается без символа, а Rz - с символом. В табл. 1 даны классы чистоты поверхности по значениям параметров Ra и Rz. Чистота поверхности зависит от способа обработки и инструмента, которым выполняется та или иная технологическая операция. В табл. 2 показано, какими операциями можно достигнуть той или иной чистоты поверхности.
Таблица 1
Таблица 2
Класс чистотыпо ГОСТ 2789-73
Ra
Rz
1 2 3
320...160 160...80 80...40
4 5
40...20 20...10
6 7 8
2,5 ...1,25 1,25...0,63 0,63...0,32
9 10 11 12
0,32...0,16 0,16...0,08 0,08...0,04 0,04...0,02
13 14
0,1 ... 0,05 0,05...0,02
ГОСТ 2.309 - 73 устанавливает обозначение шероховатости поверхностей и правила нанесения их на чертежах изделий. Высота h (cм. рисунок) знаков шероховатости равна высоте размерных чисел, высота Н равна 1,5 - ..... 3h. Толщина линий знаков равна половине толщины основной линии.
Знак (рис.2,а) применяют для обозначения шероховатости поверхности, не устанавливаемой конструктором. Знак (рис. 2,б) применяют для поверхности, образованной удалением слоя материала (точением, сверлением и т.п.). Знак (рис. 2,в) для поверхности, образованной литьем, ковкой и т.п. (т.е. без удаления слоя материала).
На рис. 3 показана структура обозначения шероховатости. Вид обработки поверхности указывается только в случае ее единственности. Направление неровностей приводят только при необходимости.
Рис. 2
Рис. 3
Рис. 4
Обозначение шероховатости на чертеже (рис.4) располагают на линиях контура, выносных линиях или на полках линий-выносок, а при недостатке места - на размерных линиях или их продолжении. Если знак имеет полку, обозначение шероховатости располагают относительно основной надписи (рис. 4,а), без полки - рис. 4,б. Если изображение с разрывом, то знак наносят ближе к месту, где указан размер.
Обозначение шероховатости поверхностей зубчатых колес, эвольвентных колес, и т.д. условно наносят на линии делительной поверхности. Шероховатость профиля резьбы наносят на выносной линии, размерной линии или ее продолжении. Если шероховатость поверхности различна, то поверхность разграничивают сплошной тонкой линией и наносят размеры и знаки шероховатости на каждом участке.
При указании одинаковой шероховатости для всех поверхностей изделия обозначение помещают в правом верхнем углу чертежа (рис.5). Размеры знака в обозначении больше, чем на чертеже, в полтора раза.
Рис. 5
Рис. 6
При одинаковой шероховатости - преобладающей части поверхности изделия - обозначение помещают в правом верхнем углу чертежа, а в скобках знак (рис. 2,а ), что означает: поверхности, шероховатость которых на чертеже не указана, должны иметь знак, поставленный перед скобками. Например, на рис. 6, в знак перед скобкой относится ко всей поверхности, кроме отверстий и паза. Размеры знака в скобке должны быть такие же, как у знаков, нанесенных на изображении.
Л И Т Е Р А Т У Р А
Баранов Л.А., Панкевич А.П. Основы черчения. М.: Высш. шк., 1982.-351 с.
Богданов и др. Справочное руководство по черчению .М.: Машиностроение, 1989. - 454 с.
Боголюбов С.К. Черчение. М.: Машиностроение, 1989. - 336 с.
Вяткин Г.П. и др. Машиностроительное черчение. М.: Машиностроение, 1985. - 368 с.
Единая система конструкторской документации. Общие правила выполнения чертежей, сборник ГОСТов. - М.: Издательство стандартов, 1991.
Левицкий В.С. Машиностроительное черчение. М.: Высш.шк., 1988. - 351 с.
Никольский Л.П., Никольская Л. Н. Техническое черчение и машиностроительные чертежи. Л: Судостроение, 1987. - 304 с.
Розов С.В. Курс черчения с картами программированного контроля. М.: Машиностроение, 1989. - 454 с.
Федоренко В.А., Шошин А.И. Справочник по машиностроительному черчению, 14-е изд. Л.: Машиностроение, 1982. - 416 с.
Категория:
снип 85
каркасное строительств
снип
строительство жилых домов
ГОСТы